ZASUWA CZOŁOWA DINFIR3 PPOŻ., 235x20x3 mm, OTWÓR M6, PRAWA, STAL NIERDZEWNA
Zasuwa czołowa obsługiwana ręcznie i dedykowana do zastosowania w skrzydle biernym w drzwiach dwuskrzydłowych.
Zobacz pełny opisZasuwa czołowa.
Opis produktu
Zasuwa czołowa dedykowana do zastosowania w skrzydle biernym w drzwiach dwuskrzydłowych. Dostęp do niej uzyskuje się po otwarciu głównego skrzydła drzwi. Korzystając z ręcznej dźwigni można cofnąć pręty i samemu otworzyć skrzydło bierne.
Dobór
Prezentowany model zasuwy czołowej jest odpowiedni do zastosowania w skrzydle prawym i współpracuje z wysuwanymi na 18 mm prętami z trzpieniem 30 mm. Pręty ryglujące są montowane na śruby M6.
Dokumenty techniczne
Zasuwa czołowa posiada certyfikat potwierdzający zgodność z normą EN 12209:2003/AC:2005. Został on przyznany przez włoski instytut badawczy CSI S.p.A. należący do międzynarodowej grupy IMQ Group s.r.l.
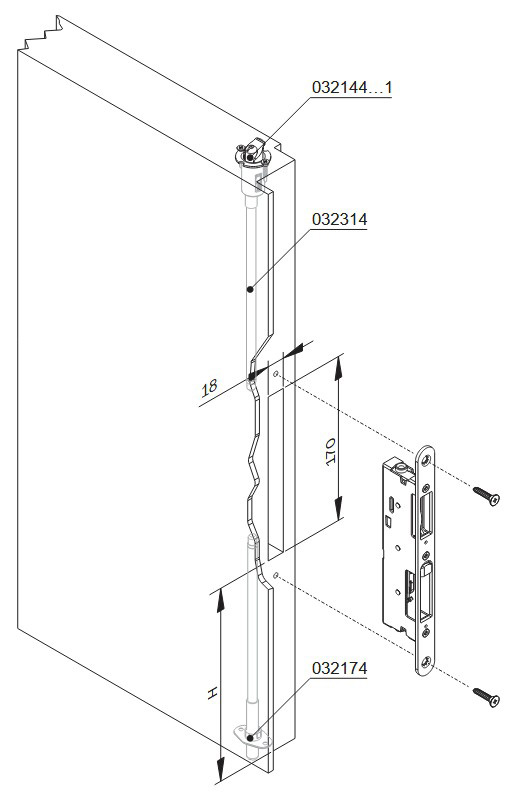
Montaż
Zamieszczony obok rysunek techniczny przedstawia prawidłowy sposób montażu zasuwy czołowej oraz dedykowanych do niej akcesoriów w skrzydle drzwiowym.
Użytkowanie
Zamontowany na górnej krawędzi skrzydła mechanizm utrzymuje rygle w pozycji wysuniętej do momentu ponownego zamknięcia drzwi. Podczas zamykania drzwi, mechanizm zwalnia rygle i automatycznie blokuje drzwi.

Warianty produktu
ZASUWA CZOŁOWA DINFIR3 PPOŻ., 235x20x3 mm, OTWÓR M6, PRAWA, STAL NIERDZEWNA
ZASUWA CZOŁOWA DINFIR3 PPOŻ., 235x24x3 mm, OTWÓR M6, PRAWA, GALWANIZOWANA NA BIAŁO
Pliki do pobrania
Instrukcje montażu
Rozmiar pliku: 4 MB
Rysunki techniczne
Rozmiar pliku: 25 KB
ISEO to znany na całym świecie producent zamknięć ewakuacyjnych, wkładek bębenkowych, zamków drzwiowych, zamykaczy oraz urządzeń kontroli dostępu. Firma została założona ponad pięćdziesiąt lat temu we Włoszech. Początkowo koncentrowała swoją działalność na terenie Europy, ale pod koniec ubiegłego wieku rozpoczęła ekspansję na inne kontynenty. Obecnie posiada oddziały na Bliskim Wschodzie, w Malezji, Chinach, Republice Południowej Afryki, a także w Kolumbii i Peru.