PRZECIWZAMEK DINFIR3 PPOŻ., FUNKCJA PANICZNA, E=65mm, 235x24x3 mm, KWADRAT 9mm, PRAWY, GALWANIZOWANY NA BIAŁO
Przeciwzamek z funkcją paniczną dedykowany do zastosowania na skrzydle biernym drzwi dwuskrzydłowych, znajdujących się na drogach ewakuacyjnych.
Zobacz pełny opis| Producent: | ISEO |
| Seria: | Dinfir3 |
| Materiał: | Stal |
| Wykończenie: | Galwanizowane na biało |
| Materiał drzwi: | Stalowe |
| Do drzwi: | Ewakuacyjnych |
| Materiał blachy czołowej: | Stal |
Opis produktu
Przeciwzamek z funkcją paniczną o rozstawie 72 mm i głębokości (dormasie) 65 mm. Wyposażony w blachę czołową o wymiarach 24x3 mm, wykonaną z ocynkowanej stali i dostępną w wykończeniu galwanizowanym na biało. Jeśli pojawi się taka potrzeba, blachę czołową można odkręcić, na przykład w celach związanych z konserwacją lub aby ją wymienić na model o tych samych wymiarach, ale w innym wykończeniu.
Dobór
Model oznaczony kodem 2D70016514 posiada otwór na trzpień ⧄ 9 mm oraz ręczną dźwignię z ocynkowanej stali. Współpracuje z prętami wysuwanymi na 20 mm, posiadającymi trzpień 30 mm. Kaseta przeciwzamka jest wykonana z ocynkowanej stali i zamknięta ze wszystkich stron, zabezpieczając znajdujące się wewnątrz niego elementy. Przeciwzamek DINFIR3 umożliwia otwieranie i zamykanie skrzydła biernego w drzwiach dwuskrzydłowych, znajdujących się na drogach ewakuacyjnych. Jest dedykowany do zastosowania w skrzydłach prawych.
Dokumenty techniczne
Przeciwzamek jest zgodny z niemiecką normą DIN 18251. Posiada także certyfikat stałości właściwości użytkowych o numerze 0497/CPR/6563, potwierdzający zgodność z normą EN 12209:2003/AC:2005. Został on przyznany przez włoski instytut badawczy CSI S.p.A. należący do międzynarodowej grupy IMQ Group s.r.l.
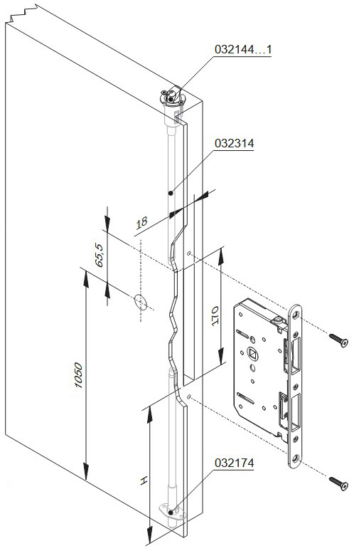
Montaż
Zamieszczony obok rysunek techniczny przedstawia prawidłowy sposób montażu przeciwzamka i dedykowanych do niego akcesoriów w skrzydle drzwiowym.
Użytkowanie
Przeciwzamek odbiera oraz utrzymuje zaczep i rygiel zamka z funkcją paniczną, znajdującego się w skrzydle czynnym. Dźwignia antypaniczna zwalnia zaczep i rygiel w skrzydle czynnym oraz chowa pręty, znajdujące się w ograniczniku na górnej krawędzi skrzydła. Zamknięcie następuje automatycznie: gdy skrzydło drzwi zbliża się do blokady prętów, są one uwalniane powodując automatyczne zablokowanie skrzydła drzwi przez przeciwzamek.

Parametry techniczne
| Producent: | ISEO |
| Seria: | Dinfir3 |
| Materiał: | Stal |
| Wykończenie: | Galwanizowane na biało |
| Materiał drzwi: | Stalowe |
| Do drzwi: | Ewakuacyjnych |
| Materiał blachy czołowej: | Stal |
| Głębokość - dormas: | 65 mm |
| Rodzaj zaczepu: | Mechaniczny |
| Wysokość blachy czołowej: | 235 mm |
| Szerokość blachy czołowej: | 24 mm |
| Grubość blachy czołowej: | 3 mm |
| Grubość kasety: | 20 mm |
| Kształt blachy czołowej: | Płaska |
| Otwór na trzpień: | Ø 9 mm |
| Sposób ryglowania: | Wysuwny |
Pliki do pobrania
Rysunki techniczne
Rozmiar pliku: 28 KB
Instrukcje montażu
Rozmiar pliku: 4 MB
Rozmiar pliku: 2 MB
Rozmiar pliku: 918 KB
Certyfikaty
Rozmiar pliku: 906 KB
Rozmiar pliku: 745 KB
ISEO to znany na całym świecie producent zamknięć ewakuacyjnych, wkładek bębenkowych, zamków drzwiowych, zamykaczy oraz urządzeń kontroli dostępu. Firma została założona ponad pięćdziesiąt lat temu we Włoszech. Początkowo koncentrowała swoją działalność na terenie Europy, ale pod koniec ubiegłego wieku rozpoczęła ekspansję na inne kontynenty. Obecnie posiada oddziały na Bliskim Wschodzie, w Malezji, Chinach, Republice Południowej Afryki, a także w Kolumbii i Peru.