ZAWIAS PIVOT 500 FREE, HEAVY DUTY, DO 500 kg, STAL NIERDZEWNA
Zawias do bardzo ciężkich zewnętrznych drzwi typu pivot o maksymalnej wadze 500 kg i minimalnej grubości skrzydła 40 mm. Jego położenie można regulować w trzech płaszczyznach w zakresie +/- 5 mm.
Zobacz pełny opis| Producent: | JNF |
| Seria: | Pivot JNF |
| Materiał: | Stal nierdzewna AISI 304 |
| Wykończenie: | Kolor stali nierdzewnej |
| Rodzaj zawiasu: | Pivotowy |
| Materiał drzwi: | Drewniane, Aluminiowe, Metalowe |
| Do drzwi: | Wewnętrznych, Pivotowych, Zewnętrznych |
Zawias, akcesoria montażowe, instrukcja.
Opis produktu
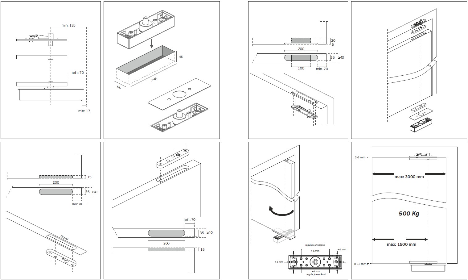
Zawias do drzwi drewnianych typu pivot o wadze do 500 kg i minimalnej grubości skrzydła 40 mm. Został wykonany ze stali nierdzewnej metodą odlewu ciśnieniowego i jest dostępny w wykończeniu matowym. Składa się z części górnej oraz z części dolnej, obie umożliwiają regulację położenia skrzydła przy użyciu zawiasu. Odległość od osi zawiasu części górnej do krawędzi skrzydła musi wynosić co najmniej 140 mm. Kąt obrotu zawiasu to 360°.
Dobór
Zawias 500 FREE jest odpowiedni do zastosowania w drzwiach drewnianych typu pivot o maksymalnej wadze 500 kg, grubości skrzydła minimum 40 mm i maksymalnej szerokości 3000 mm. Kąt obrotu zawiasu wynosi pełne 360° co oznacza, że korzystając z zawiasu można uzyskać drzwi obrotowe. W górnej części zawiasu znajduje się przepust kablowy, umożliwiający łatwe przeprowadzenie przewodów przez skrzydło drzwiowe.
Montaż
W górnej części zawiasu odległość od osi zawiasu do krawędzi skrzydła musi wynosić co najmniej 140 mm. Montaż dolnej części zawiasu do podłoża nie wymaga wykonywania prac murarskich, co znacznie ułatwia i przyspiesza instalację drzwi typu pivot. Zarówno górna, jak i dolna część zawiasu umożliwia regulację położenia skrzydła, zapewniając jego dokładne wypoziomowanie i wyrównanie podczas instalacji.
Wzmocnione podstawki gwarantują pewne mocowanie na drzwiach oraz górnej krawędzi ościeżnicy. Umieszczone w górnej części zawiasu łożysko igiełkowe zapewnia perfekcyjną pracę skrzydła podczas obrotu. Z kolei znajdujące się w dolnej części łożysko stożkowe eliminuje luzy oraz gwarantuje cichą i płynną pracę drzwi.

Wymiary montażowe

Użytkowanie
Wykonana ze stali nierdzewnej osłona o grubości 2 mm umożliwia dostęp do wnętrza obudowy w celu wyregulowania drzwi bez konieczności ich zdejmowania.

Parametry techniczne
| Producent: | JNF |
| Seria: | Pivot JNF |
| Materiał: | Stal nierdzewna AISI 304 |
| Wykończenie: | Kolor stali nierdzewnej |
| Rodzaj zawiasu: | Pivotowy |
| Materiał drzwi: | Drewniane, Aluminiowe, Metalowe |
| Do drzwi: | Wewnętrznych, Pivotowych, Zewnętrznych |
| Nośność dla kompletu: | 500 kg |
| Minimalna grubość drzwi: | 40 mm |
| Maksymalna szerokość drzwi: | 3000 mm |
| Odległość osi zawiasu od krawędzi skrzydła: | 140 mm |
| Kąt obrotu: | 360° |
| Regulacja zawiasu: | Dół, Góra |
| Przepust kablowy: | Tak |
Pliki do pobrania
Certyfikaty
Rozmiar pliku: 98 KB
Instrukcje montażu
Rozmiar pliku: 940 KB
Rysunki techniczne
Rozmiar pliku: 13 MB
Rozmiar pliku: 62 KB
Rozmiar pliku: 206 KB
Rozmiar pliku: 53 KB
JNF to portugalski producent okuć do drzwi i okien, obecny na rynku nieprzerwanie od 1965 roku. Oprócz siedziby w Portugalii, posiada również swój showroom w hiszpańskiej Barcelonie. Jednym z obszarów działalności firmy jest opracowywanie i wytwarzanie wysokiej jakości zawiasów do masywnych drzwi typu pivot. Konstrukcja i mechanizm działania wielu modeli takich zawiasów podlega międzynarodowej ochronie patentowej. JNF dba o ciągłe rozwijanie i udoskonalanie oferowanych rozwiązań, które trafiają do odbiorców nie tylko w Europie, ale także w innych zakątkach świata. Firma posiada własne laboratorium, w którym wnikliwie bada wytwarzane produkty oraz testuje nowe prototypowe rozwiązania.